QUATTRO CONCEPT architectes















CUB 37



MAITRE D’OUVRAGE
L’eau vive

OBJET DES TRAVAUX
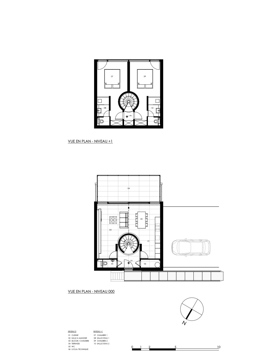
Création d’un espace chambre d’hôte en milieu rural.

LIEU 
Rivière, Profondeville

ANNEE
2014-2015


©Antoine Melis