QUATTRO CONCEPT architectes














JAN 79



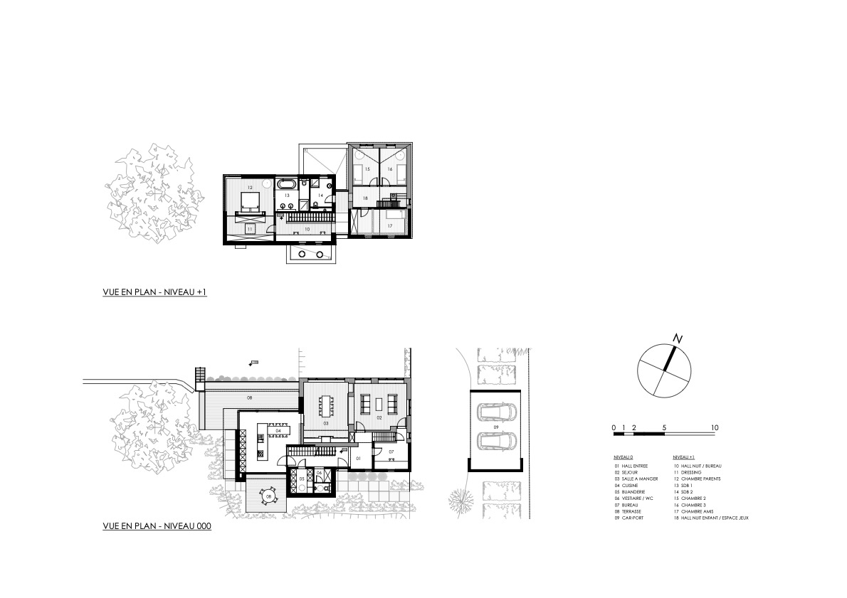
MAITRE D’OUVRAGE
Privé

OBJET DES TRAVAUX
Extension et restructuration
d’une habitation unifamiliale.

LIEU 
Lives-sur-Meuse, Namur

ANNEE
2011-2013